2012 / architektonická soutěž
projekt vznikl v ateliéru Uhlík architekti
autoři
MgA. Ing. arch. Petr Uhlík
www.uhlikarchitekti.cz
Ing. arch. Jan Šorm
www.ctrla.cz
Ing. arch. Přemysl Jurák
ocenění / čestné uznání
Situace, se kterou se zcela běžně setkáme na okraji našich měst: do kdysi předměstské až venkovské rostlé zástavby nemilosrdně nastupuje sídliště, vysoké objemné domy původní zástavbu převálcují logikou ekonomie jeřábových drah, urbanismem hygienických odstupů a diagramem oslunění. Staré cesty jsou rozšířeny a narovnány. Zůstávají torza předměstských drobných domů a cest v sídlištním zeleném prostranství jako podivuhodné zapomenuté hračky pod fasádami mnohapodlažních panelových domů.
Zde se sídlištní stavbostroj zastavil před Kateřinkami, klasickou rostlou vesnicí, dnes součástí města Opavy. Parcela určená pro stavbu penzionu se nachází právě na tomto rozhraní struktur. Původní Hálkova ulice byla oboustranně obestavěna dvou až třípodlažními řadovými domy. Do dnešní doby se zachovaly pouze čtyři z nich. Také dvojpodlažní funkcionalistický dům bratrů Šlapetových v Rolnické zachovává charakter a měřítko zástavby z 19 stol. Mezi Hálkovou a Ratibořskou ulicí zůstává nezastavěný prostor jako výzva pro posílení torza původních domů, jejich ukotvení v kontextu, nalezení nového vztahu k venkovské zástavbě Kateřinek.
Tato šance je téměř definitivně znemožněna nedávnou stavbou šestipodlažního bytového domu při Ratibořské. Spolu s právě započatou stavbou bytového domu „Rohlík“ zakládají oba domy obrovitý blok, zde zcela cizorodý nejen půlkruhovým tvarováním, ale hlavně měřítkem bloku samotného. Ze sídliště, jako města v zeleni, si oba domy vybírají profit pro výšku možného zastavění bez ohledu na měřítko domů v sousedství, od sídliště se „emancipují“ zformováním do bloku a odvahou tvarovat.

Ačkoliv jsou vazby přetrhány téměř bezezbytku, rozhodli jsme se postavit dům respektive domy o třech podlažích, podobně jako domy z původního předměstí. Pokračovat v započatém bloku považujeme za nežádoucí. Navržený dům má od štítu „Rohlíku“ odstup dva metry. Z uliční hrany jím naznačené vystupujeme blíže k původní uliční hraně Hálkovy ulice, tak abychom zachovali chodník a prostor pro parkování. V budoucnu by mohla být nahrazena budova výměníku, postavená přes původní uliční profil a Hálkova se tímto zprůjezdnit.

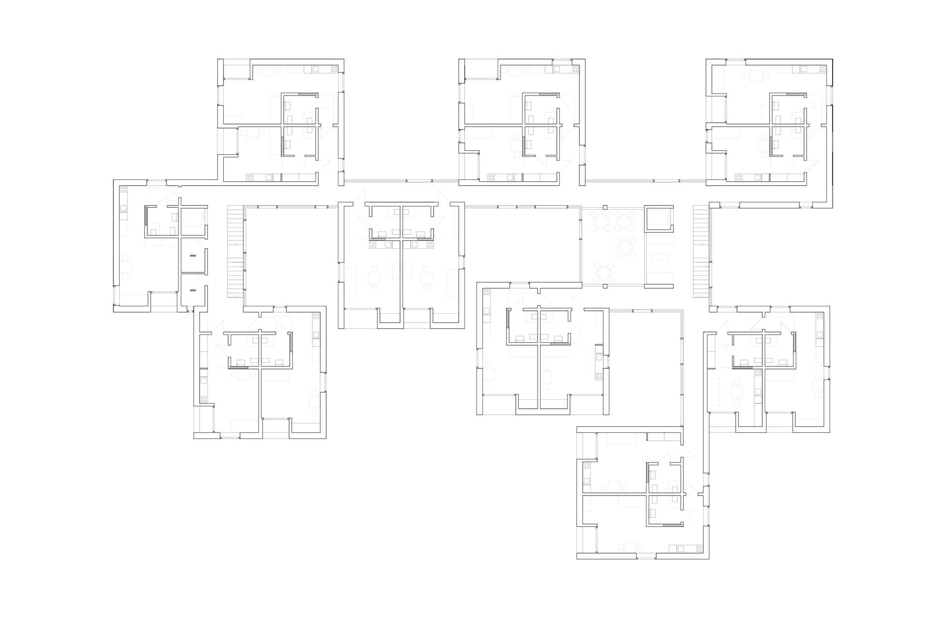
Navrhujeme na parcele 10 domů zhruba o rozměru 10x10x10 metrů. Domy zastavují parcelu jako šachovnici s vnitřními dvory. Hmoty kostek v šíři 10 metrů naznačují původní parcelaci pozemků při Hálkově ulice, podobně jako některé parcely zůstaly nezastavěny, mezi štíty do ulice pronikaly zahrady, také náš návrh má 2 dvory otevřené do prostoru Hálkovy ulice. Sousední nárožní parcela 185/2 je šancí, jak navázat na původní zástavbu Kateřinek včetně památkově chráněného funkcionalistického domu. Nejde nám o nápodobu původního zastavění, inspiruje nás pouze k podobnému prostorovému zážitku: úzké parcely zastavěné i do hloubky drobnými objekty, posuny domů vůči sobě, vznikající drobné dvory jako jedinečné intimní situace sdílených prostor. Malé a přívětivé měřítko. Nosné motivy pro sdílení společného domu pro 50 seniorů. Toto prostorové uspořádání vytvoří svůj vlastní svět směrem dovnitř do parcely, aby obyvatelé nebyli odkázáni na plánovaný nešťastný prostor vnitrobloku.

Procházení domy – kostkami díky šachovnicové formě by měl být zážitkem z prostoru. Ačkoliv jde o strukturu stejně velkých objemůkostek je navržen jako jeden spojitý dům. Jednotlivé kostky jsou vnitřně propojeny chodbami. Ty jsou navrženy tak, že se vždy jednou stranou otevírají prosklenou stěnou směrem do dvorků střídavě na obě strany. Vznikají tedy intimní dvorky obkroužené chodbou jako pavlačí. Chodbyochozy by měly být příjemným místem pro běžné setkávání obyvatel uvnitř domu.

Dům je obsloužen dvěma komunikačními jádry se schodišti a výtahem v druhé řadě kostek šachovnice směrem od Hálkovy ulice. Vertikální komunikace jsou voleny ve dvou ohniscích domu tak, aby cesty domem byly co nejkratší. Společná místnost je situována u jednoho z nich, stává se tak přirozeným místem setkávání. Za nevhodné bychom z těchto důvodů považovali její umístění např. v suterénu. Společnou místnost koncipujeme jako prostor otevřený jednak prosklenou stěnou do dvorů, ale také propojený s ochozy. K nim by se v případě potřeby uzavíral posuvnými stěnami. Důležitá je také její vertikální proporce, vzniklá otevřením stropu do 2.NP, kde vzniká nad místností galerie.

Do domu se vstupuje dvěma dvorky naproti komunikačním jádrům přímo z Hálkovy ulice. Každá kostka má zpravidla dva byty na patře otevřené okny a lodžiemi tak, aby byly orientovány jednak k výhledům a průhledům skrze domy, zároveň byly osluněny. Všechny dvory jsou otevřené k volnému prostranství. Buďto přímo na něj navazují nebo nepřímo ven ústí skrze další dvorky zhruba metrovým průchodem. Každý byt má možnost orientace oken na dvě až tři světové strany. To umožňuje variovat nejen výhledy, ale i nálady denního světla a slunečního záření. Byty mají velikost od 30 m2 do 40 m2 a řešeny jsou v několika variacích dvou základních typů. Ve dvou kostkách v uliční frontě jsou v neosluněných částech v přízemí sklepní kóje.

Fasády domu jsou jednoduché, členěny pouze otvory pro lodžie a klasickými okny ve třech velikostech. Lodžie díky širokým špaletám vytvářejí dojem, hloubky otvorů ve fasádě a dodávají na pocitu hmotnosti domů.
Návrh jsme podrobili testování na splnění požadavků dostatečného oslunění všech bytů. Poloha jednotlivých kostek na pozemku a orientace oken a lodžií bytů byla od počátku jedním ze základních parametrů při koncipování návrhu.
Všechny bytové jednotky splňují také příslušné parametry pro osoby s omezenou možností pohybu.








