autor
Přemysl Jurák
2009 / školní práce v ateliéru Hájek-Šépka
ocenění
Nominace na cenu Olověný Dušan 2009
Objekt zázemí neuskutečněné „Pražské komorní scény“ na náměstí 14. Října na Smíchově v Praze. Využití stávajícího objektu, který dnes slouží pro pořádání nekonformních divadelních představení. Tento objekt umožňuje nástavbu. Úkolem ateliérové práce bylo zkombinování několika různých funkcí – stávající divadlo, terapeutické centrum a byty.

Princip návrhu je ve vytváření prostorů v interiéru a exteriéru pomocí posuvných závěsů. Tyto posuvné prvky dokážou reagovat na: potřebu oddělení funkcí a na velikost prostoru pro jednotlivé funkce; zamezení přístupu do dočasně uzavřených částí domu; množství světla prostupujícího do bytů v nástavbě; sílu větru;

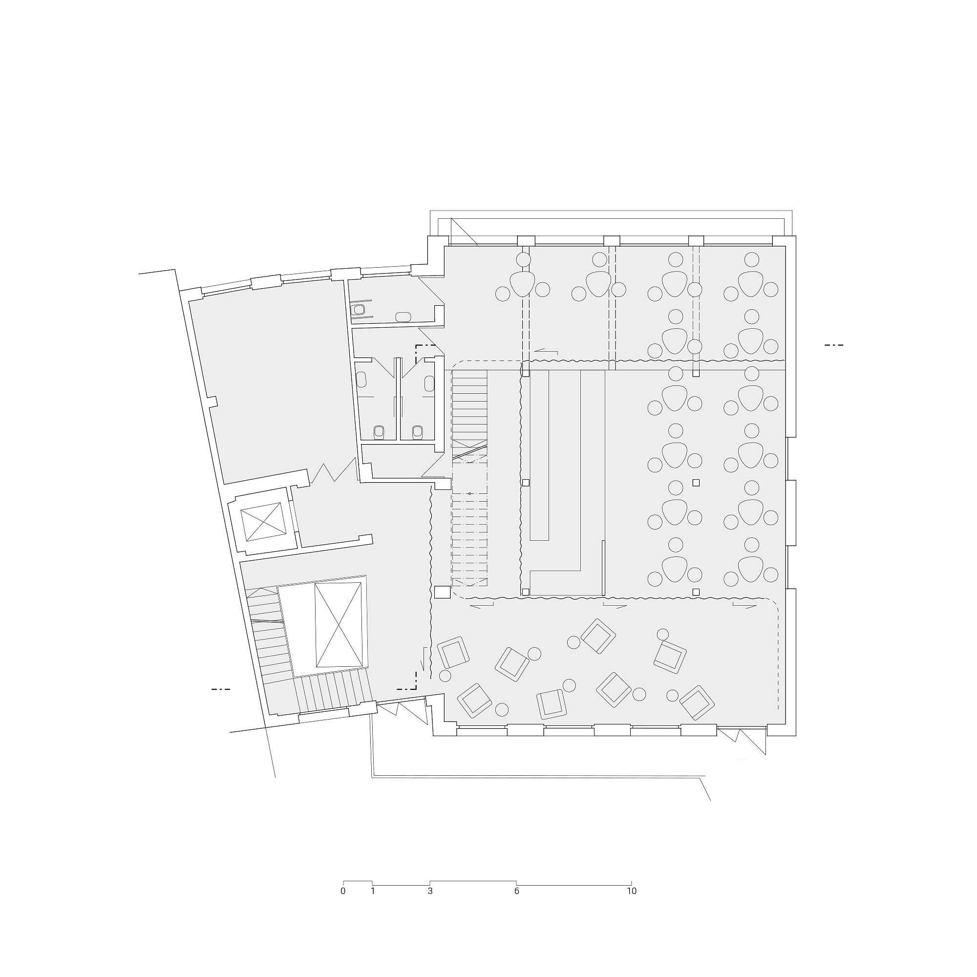
Do objektu se vstupuje stávajícími vchody na západní fasádě. Ve vstupním podlaží je umístěna recepce a čekárna pro terapeutické centrum, kavárna s barem, WC, šatna a sklad kulis pro divadlo. V podstatě je to jeden objem, který je nadělen posuvnými závěsy, které vždy dočasně vymezují prostor určený pro čekárnu, bar, šatnu, foyer nebo úplně uzavřou přístup do tohoto místa. Jeden prostor muže v různém čase sloužit různým funkcím. Do stávajících otvorů ve fasádě jsou navrženy skleněné výplně zajišťující dostatečný přísun světla do interiéru, na východní fasádě je umístěn nouzový východ.
Terapeutické centrum je společně s kotelnou a technickou místností pro úklid umístěno v prostoru současného suterénu. Prostor centra je bez pevných příček, prosvětlen skrz prosklený strop nad tělocvičnou.
V druhém nadzemním podlaží se nachází stávající sál, který je doplněn o zákulisí. Ze sálu ústí směrem na ulici schodiště využívané pro únik v případě požáru. Pro herce jsou připraveny šatny se sociálním zařízením. O podlaží výš je umístěn přístup pro techniky na ochoz, kancelář divadla a sklad rekvizit.
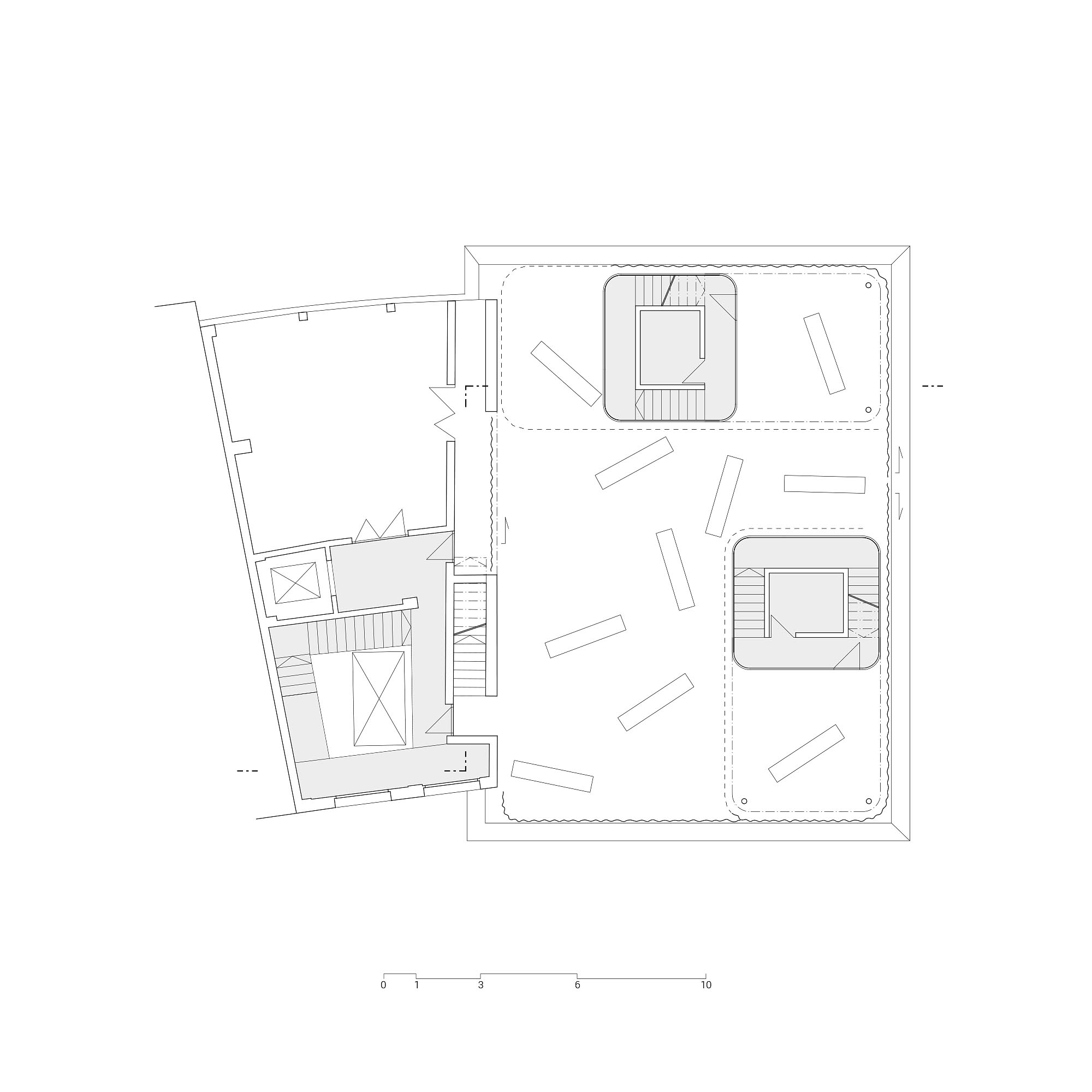
Jako nástavba je na domě umístěna letní scéna se zázemím, místnost vzduchotechniky a čtyři vertikální byty. Celá nástavba je „zabalena“ do textilie firmy Ferrari, která je zavěšena na kolejních obíhajících po obvodu domy a obrysech jednotlivých bytů. Celý plášť nástavby je vertikálně rozdělen na pět posuvných dílů, jeden díl pro každý byt a jeden pro letní.
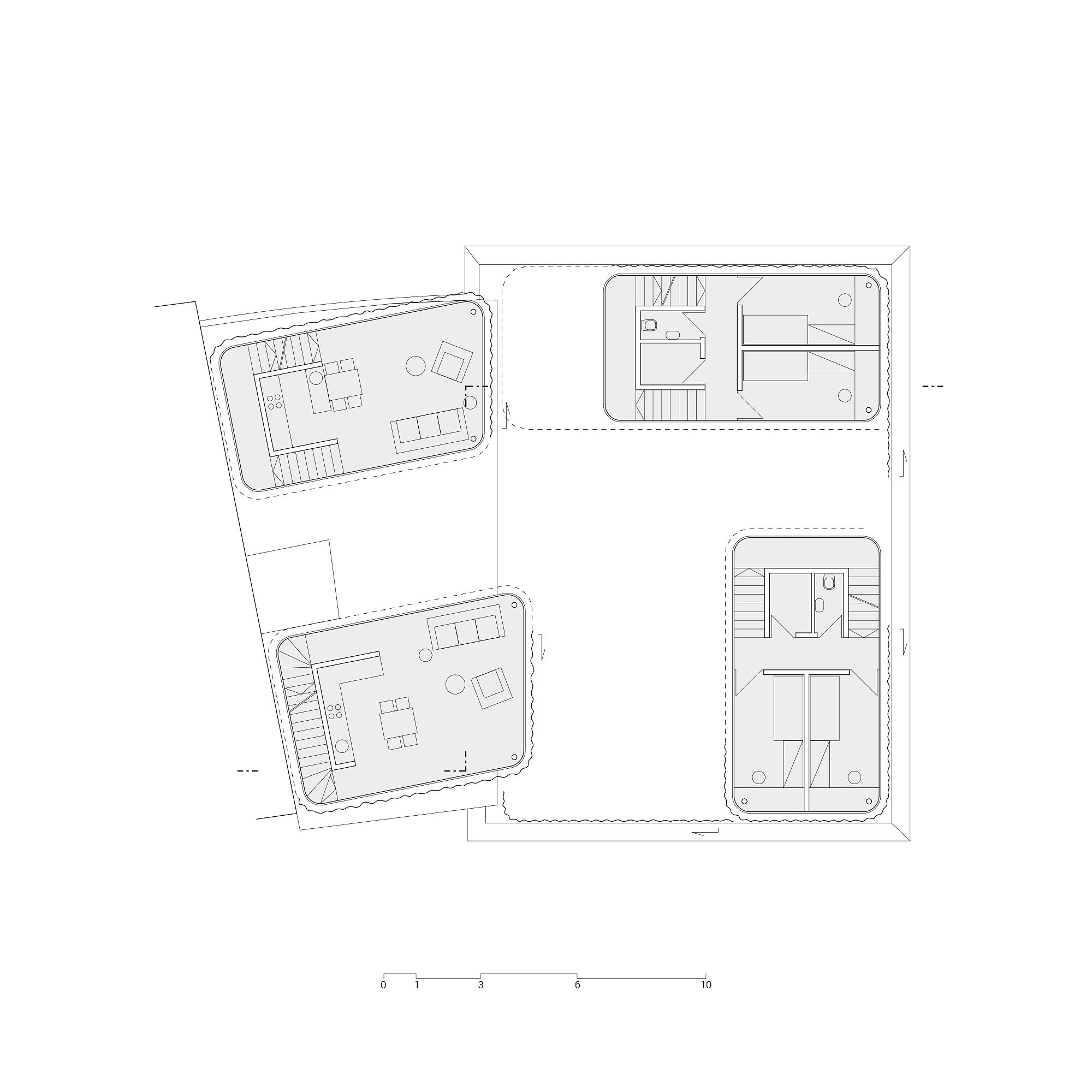
Věže bytů jsou přístupny samostatnými vstupy z prostoru letní terasy. Plocha bytu je na této úrovni minimalizována pouze místnost šatny a prostor schodiště. V dalších patrech bytu se nacházejí obývací pokoj s kuchyní, dva pokoje a ložnice. Na střeše bytu je terasa s výhledem na nejbližší okolí a možná i na Pražský hrad. Každý byt má možnost sám ovládat jeden díl stínící opony a tak regulovat množství světla pronikajícího do interiéru.











