2020 / veřejná architektonická soutěž
autoři
Ing. arch. Přemysl Jurák
Ing. arch. Jana Vichorcová
spolupráce
Ing. arch. Alžběta Majnušová
Novou budovu mateřské školky chápeme jako místo setkávání dětí a rodičů a hlavně jako první větší prostorový zážitek pro děti předškolního věku. Nabízí jim prostorovou pestrost a tím dětem prohlubuje jejich představivost a otevírá oči i mysl.
Srdcem domu je společná prostorná herna ve které se propojují všechny děje a zároveň nabízí i různé zákoutí a pocit soukromí. Poskytuje vizuální propojení se zahradou, vstupním dvorkem, třídami i učebnami v 2.NP.
Dům plynule vertikálně navazuje na rozlehlou zahradu ZŠ a nijak na sebe neupozorňuje. Chce být obklopen stromy a mít kontakt se zahradou a s ulicí, protože to dělá dům přátelským.
Širší řešené území se nachází v Městské části Praha 6, katastrální území Vokovice. Místo pro stavbu nové mateřské školky je vymezeno areálem Základní školy Červený vrch. V tomto místě se setkávají původní drobná předválečná struktura zástavby předního Veleslavína a ortogonální centrálně plánovaná výstavba z druhé poloviny dvacátého století provázející realizaci Evropské ulice. Novou výstavbou byl přerušen plynulý historický vývoj sítě cest a ulic, původní cesta v trase nynější Africké ulice procházela od severovýchodu skrz školní areál, podél budovy jídelny. Školní areál a zadaná parcela pro umístění školky leží na uměle vytvořené zvýšené terénní terase.
Prostorově je pozemek školky v širším kontextu vymezen ze severní strany osmipatrovými bytovými domy, z jihu pak budovou základní školy, která je vzhledem k výškovému uspořádání terénu vnímána jako dominanta v Alžírské ulici. Ze západní strany prostor doplňují vzrostlé stromy ukrývající třípodlažní pavilony speciální základní školy.

Navrhovaný dům vytváří městotvorný pevný bod na rohu parcely a oproti okolní rozvolněné zástavbě, která výrazně ovlivňuje charakter místa, svým přímým napojením na chodník nově stanovuje uliční čáru na hranici ulice Alžírská.
Jednopodlažní dům se tak obrací směrem do zahrady a svojí přetaženou střechou vytváří třídám pocit soukromí, zatímco dvoupodlažní objem má rohovou dominantní polohu. Podzemní patro na severní straně pozemku vyrovnává prudký sklon terénu a navazuje na ul. Africkou.
Do objektu lze vstoupit po bezbariérové rampě, která sleduje směr chodníku v ul. Alžírská a je v blízkosti hlavního vstupu do ZŠ a vyhrazeného parkoviště K+R pro rodiče přivážející děti do školky v předprostoru ZŠ. Druhým možným vstupem, v návaznosti na příchod ze směru od MHD a na přechod pro chodce, jsou za malou brankou umístěny schody vedoucí do venkovního dvorku. Samostatný vstup pro zásobování školky a jeho zaměstnance v 1.PP je veden z klidnější ul. Africké přes vlastní pracovní dvorek.
V současné době není předprostor ZŠ jasně definovaný. Chybí pobytové plochy pro děti i organizované parkování. Proto posouváme oplocení od hranice pozemku, které vymezuje veřejné parkování K+R s kamennou dlažbou mezi stávajícími vzrostlými stromy a asfaltový soukromý školní pozemek s vyhrazeným parkováním pro zaměstnance ZŠ a vjezdem pro zásobování. Na oplocení v rohu navazuje cyklodomek s vedlejším vstupem do školního areálu. Přístupová cesta k hlavnímu vchodu do školní budovy je lemována stromy a navazuje na nově vybudované dřevěné pódium s lavicí a pítkem.
Pódium nahrazuje nynější parkoviště a pomocí pobytových schodů propojuje děti se zahradou. Na zahradě je betonové kruhové hřiště s různými hracími prvky (skate park, ping-pong, šachy, …). Solitérní strom v jeho nejbližším okolí na hrací plochu vrhá stín v letních měsících.


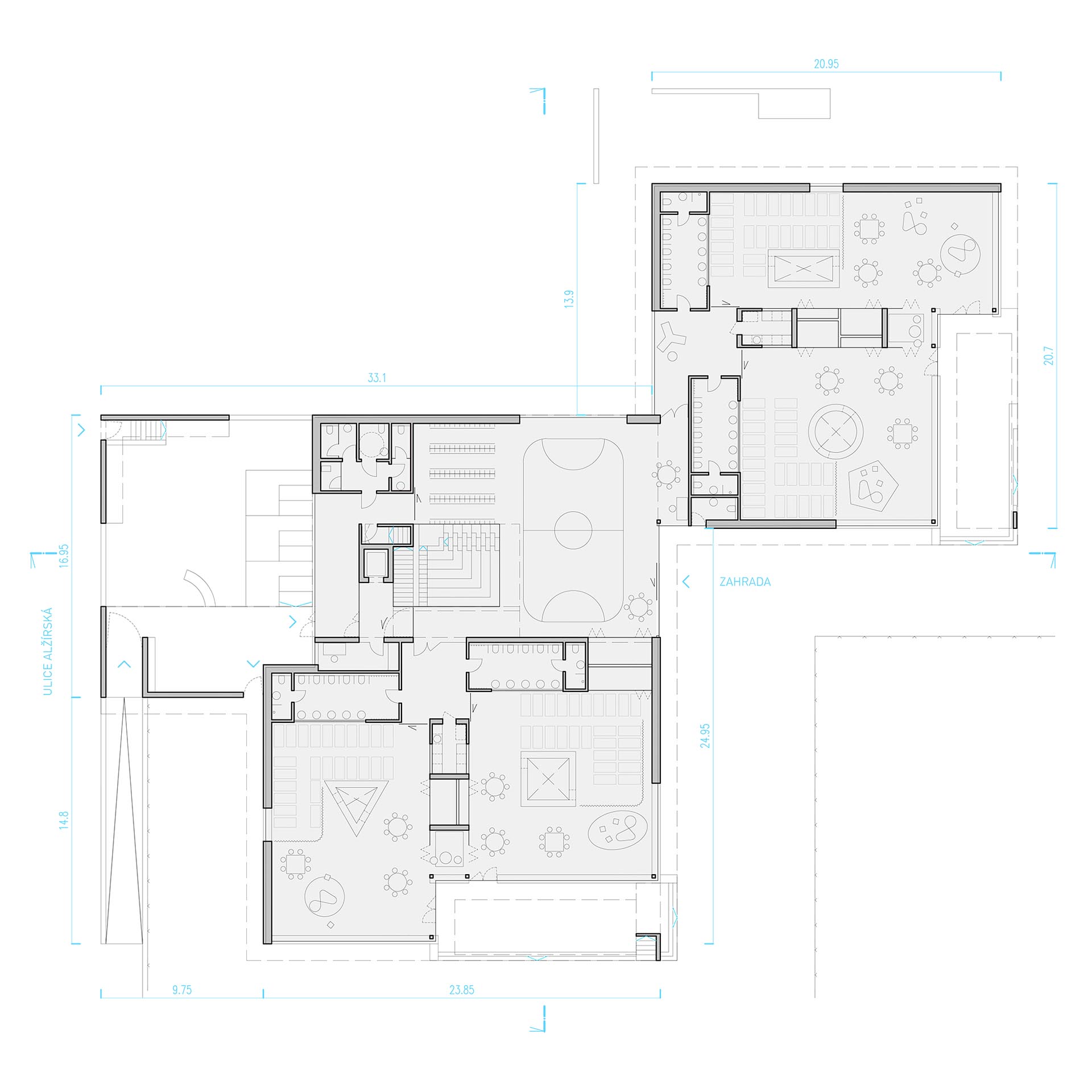
Z herny, která tvoří srdce domu, lze vejít do jednotlivých tříd. Třídy jsou orientovány jihovýchodním směrem do zahrady, kdy poloha a vzájemný posun tříd odráží pohyb slunce v dopoledních hodinách. Plynulý přechod mezi interiérem a exteriérem zajišťují hlavně okna s nízkým parapetem orientovaná přes roh směrem ke společné terase. Přetažený lem střechy zajišťuje stínění tříd a vizuální kšilt směrem k budově ZŠ. Výstup je na krytý zapuštěný dvorek s dřevěnou palubou a posuvnou zastiňující plachtou. Vnitřní prostor třídy je plynule členěn do jednotlivých zón (spací, hrací, jídelna, …) pomocí objektu světlíku, který tvoří dělící a zároveň hrací prvek pro děti. Tento objekt světlíku slouží jako průlezka, schovka, knihovna, … Je tak na každém dítěti, kterou část třídy si oblíbí a jak bude tento objekt využívat.


Situování a půdorysný tvar domu vytváří tři části soukromé zahrady doplněné o samostatný vstupní dvorek. Zahradu symbolicky uzavírá branka vsazená ve zdi – hranice dvou prostředí, pro děti vzniká jasný rituál vstupu na zahradu. Za brankou je navržena „předzahrádka“ – první část zahrady se soliterním stromem a motivem výrazného okna s průhledem z ulice do domu.
Direktivně stanovená hranice mezi zahradou a areálem základní školy je rozvolněna a pohledově je zahrada zvětšována na úkor školního areálu. Před oknem do třídy je přerušena políčkem s výsadbou lučních květin a bylin, které je na pozemku základní školy uzavřeno malým hájem stromů.
Druhá část – jižní segment zahrady blíže k budově základní školy je charakterizován větším počtem herních prvků, exteriérovým schodištěm je také přístupná pobytová terasa na střeše školky, která doplňuje zahradu. Mezi chodníkem vedoucím ke vstupu do školy a zahradou jsou navrženy keře doplněné vzrostlými stromy, vznikají tak dva oddělené prostory a fasáda školní jídelny s tělocvičnou je posunutu při pohledu ze tříd do druhého plánu.
Východní segment – třetí část zahrady pohledově otevřená do stromořadí podél Africké ulice je tematicky koncipována spíše jako užitková zahrada se záhony, zahradním domkem a skleníkem.
V zahradě nenavrhujeme zpevněné plochy, s ohledem na největší intenzitu pohybu v místě za vstupní brankou budou do trávy položeny kamenné šlapáky. Činnosti, které vyžadují pevný povrch mohou probíhat na terasách před třídami.
Pro zabezpečení příjemného klimatu v horkých dnech jsou v prostoru zahrady rozmístěna dvě pítka a dvě mlžítka.
Zahrada a herní terasa se dřevěnými palubkami na střeše školky umožňují různorodé využití a zónování jednotlivých činností. Může tak vzniknout inspirativní prostředí, plné podnětů pro svobodný vývoj dětí.

Dům školky je objemově koncipován jako přízemní objekt, který je částečně podsklepen a v menší části doplněn o ustupující patro.
Technické zázemí provozu školky je umístěno v suterénu objektu, který vzhledem ke konfiguraci terénu umožňuje bezkolizní napojení na zásobování přímo z ulice Africké. Na základě provozních vazeb jsou navrženy samostatné vstupy pro zaměstnance a pro zásobování. Suterén dispozičně zahrnuje zázemí pro zaměstnance, provozní zázemí školky a zahrady, provoz kuchyně se sklady a prostor pro technologie. Jídlo je z kuchyně do tříd převáženo na gastro vozících, suterén je s přízemím propojen schodištěm a odpovídajícím bezbariérovým výtahem.
Hlavní vstup pro děti s rodiči je orientován do ulice Alžírské. Krátkodobé parkovací stání je vymezeno na nově navrhované ploše jižním směrem od vstupního dvorku školky. Rodiče a děti vstupují z krytého závětří přímo do šatny, zatímco návštěvy, učitelský sbor a rodiče při společných akcích vstupují do herny.
Na zádveří je napojeno schodiště vedoucí do patra, kde jsou dvě učebny pro výuku jazyků a výtvarné tvorby. Poloha schodiště a výtahu umožňuje fungování patra s učebnami ve dvou samostatných režimech respektující oddělení čistého provozu školky a provozu pro veřejnost. V dopoledních a odpoledních hodinách může být schodiště propojeno s centrální halou školky pobytovými schody a umožňuje přístup dětí do učeben v patře. Po ukončení výuky lze omezit přístup veřejnosti pouze do učeben a k návštěvnickým toaletám, suterén a hlavní prostory školky zůstávají nepřístupné.
Společenským středem školky je centrální hala – herna s dílnou. Prostor haly je sevřen mezi dvěma bloky tříd a je součástkou propojující vnějších prostředí okolo školky – vstupního dvorku, uličního prostoru v Alžírské a Africké ulici a zejména pobytové zahrady.
Třídy jsou sdruženy do bloků po dvojicích. Každá dvojice má společnou kuchyňku pro výdej jídel a meziprostor vyhrazený pro zázemí učitelek, přes který lze propojit obě třídy a využít flexibilitu interiéru k hlubšímu sepjetí kolektivu dětí. Každá z tříd je specifická svým tvarem střešního světlíku. Hlavní okna s nízkým parapetem se z tříd orientují na východ a jih směrem ke společné terase, okna orientovaná přes roh terasy zprostředkovávají pohledový kontakt dětí z obou tříd a vzájemnou interakci dvou interiérových prostorů a malých kamarádů formálně rozdělených do tříd.
V patře objektu jsou umístěny dvě učebny, které jsou přístupné z přízemí po schodišti ze společné haly. Obě úrovně domu jsou prostorově propojeny. Třída pro výuku jazyků je prosvětlena okny ze severu, třída výtvarné tvorby je pro zvýšení kvality pracovního prostředí doplněna o horní prosvětlení šedovými světlíky.
Střecha nad jednopodlažní částí domu je rozdělena na dvě charakterově odlišné segmenty. Jižní segment přístupný z ochozu v hale je věnován dřevěné pobytové terase pro potřeby dětí ze školky a je proto také propojen exteriérovým schodištěm ze zahradou. Východní část střechy je nepochozí s vegetační skladbou kombinující intenzivní a extenzivní zeleň, mezi kterou je před výstupem z třídy výtvarné tvorby vymezena terasa z betonové dlažby pro možnost provádět některé výtvarné techniky v exteriéru.

Konstrukčně je objekt navržen jako kombinace železobetonových zdí a sloupů, stropní desky jsou monolitické železobetonové. Fasáda domu kombinuje zdivo ze světlých lícových cihel, římsu z pohledového betonu a dřevěné obkladové desky doplňující dřevěné rámy oken. Prosklené části jižní a východní fasády budou stíněny textilními roletami. Terasy před třídami kombinují litý beton a dřevěná prkna. Na pobytové střešní terase jsou použita dřevěná prkna, zbylá nepochozí část střechy s vegetační skladbou kombinující intenzivní a extenzivní zeleň.
V interiéru se propisují materiály z vnějšího obrazu domu, na stěnách jsou kombinovány světlé lícové cihly a světlý pohledový beton. V umývárnách a mokrých provozech budou stěny obloženy deskami z kameninových desek v odstínu cihel. V třídách a místech pro hru dětí je navržena podlaha ze světle zeleného přírodního marmolea, v mokrých provozech dlažba z chemické kameniny v odstínu cihel. V pobytových místnostech kde bude potřeba zajistit akustickou pohodu je navržen dřevěný perforovaný podhled.







