autoři
Ing. arch. Přemysl Jurák
Ing. arch. Kamil Měrka, www.ti2.cz
2013 / architektonická studie
2015 / dokumentace pro provedení stavby
Nerealizováno
Objekt vesnického charakteru pro sezónní využití s minimálním potřebným technickým zázemím. “Stodola” poskytující útočiště pro občany (i návštěvníky) obce s ambicí stát se místem setkávání (zastavení).
Jedna pěšina vedoucí od východu na západ. Procházející sadem, vedoucí okolo stodoly, míjející vzrostlý kaštan a pokračující dále až za hranice obce.

Řešené území je v současné době spíše neformálním areálem, který slouží pro každodenní rekreační, sportovní a herní aktivity obyvatel obce. Příležitostně se zde během roku konají akce s přesahem obecního rámce (např. Oldřichovický žejdlík). Pro tyto aktivity má areál dostatečnou rozlohu, bohužel přestárlé prvky – objekt podia, asfaltová plocha – nemohou adekvátně přispívat k rozvoji těchto činností. V územním plánu řešené území spadá do kategorie „sportovní plochy, veřejná zeleň, plochy s občanskou vybaveností“.
V jihozápadní části areálu se nachází extenzivní sad s travo-bylinným porostem a s několika vzrostlými ovocnými vysokokmeny a s částečnou novou mladou dosadbou nižších tvarů ovocných stromků. Větší část areálu je prakticky bez dřevitého porostu (travnatá hřiště). Ve svahu terénního zářezu pří severozápadní hranici se nachází několik listnatých a jehličnatých stromů (bříza, modřín), vysazených v dřívějších letech.
V centrální části se nachází hřiště s asfaltovým povrchem určené pro míčové hry. Povrch plochy je dožilý, s nerovnostmi. K hřišti přiléhá kryté dřevěné podium a několik pevných lavic se stoly. Za podiem se nachází dřevěná bouda Oldřichovického pivoje pro přípravu příležitostného občerstvení. Dále se zde nachází udírna s ohništěm, využívaná při společenských akcích. Východní část řešeného území slouží jako příležitostné travnaté hřiště. V prostoru extenzivního sadu se nachází nově vybudované dětské hřiště, ke kterému přiléhají dvě mobilní buňky se sociálním zařízením.
Na jihozápadní hranici území se nachází nově zbudovaná vodovodní přípojka a dále původní přípojka elektro. Odvod splaškové vody je řešen potrubím do septiku nacházejícího se na pozemku parc. č. 321. Řešeným územím a také podél jeho hranic procházejí nadzemní vedení VN(ochranné pásmo 10m na každou stranu od krajního vodiče). Podél jihovýchodní hranice prochází potrubí STL plynovodu, ze severozápadu lemuje území vodovodní přivaděč (OC150).
V rámci řešeného areálu je v současné době využívána především travnatá plocha s volně rozmístěnými brankami. Zpevněná asfaltová plocha s podiem je využívána při společenských akcích – taneční zábavy, posezení u ohně.


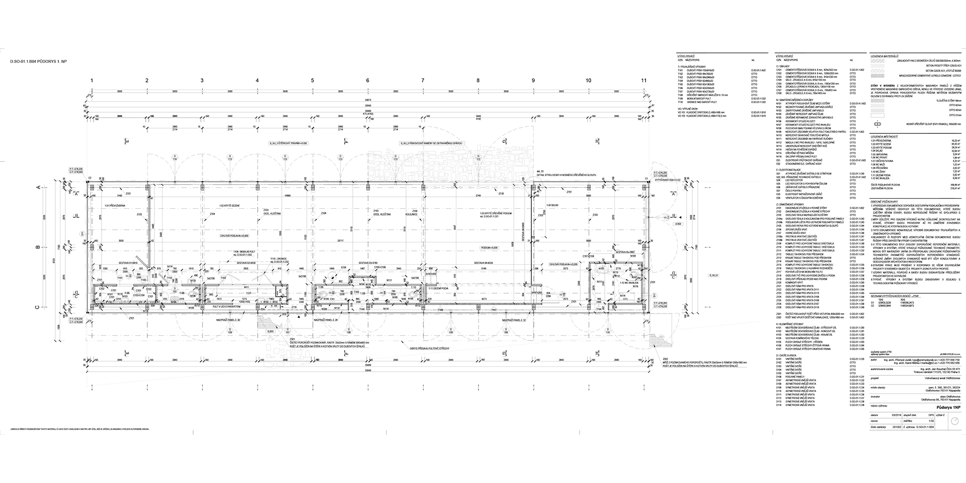
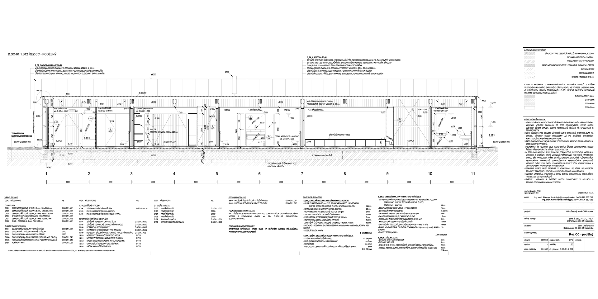
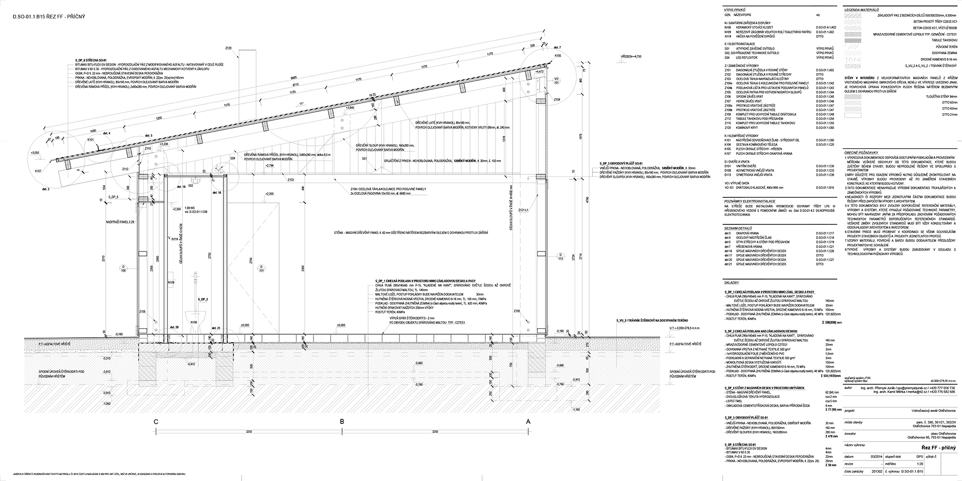
Objekt je koncipovaný jako jednopodlažní stavba s pultovou střechou pro sezonní využití, svým umístěním na niveletu stávajícího terénu minimalizuje potřebu zemních prací. Hlavní vstup je umístěn na jižní fasádě směřující do vesnice, zde se také nachází vstup do předprostoru sociálního zařízení a výdejní okénko občerstvení. Severozápadní fasádu směrem k multifunkční ploše (taneční parket) lze šesti páry rozměrných vrat kompletně otevřít.
Vnitřní prostory jsou rozděleny na minimální potřebné sociální, technické i skladovací zázemí a volný multifunkční sál s podiem. Dispozici lze flexibilně, jednoduše a rychle měnit pomocí posuvných příček a tím ji přizpůsobovat aktuálním požadavkům a potřebám (svatba, pingpongový turnaj, zábava, hasičské závody…).
Nosná konstrukce se sestává z jednoduchých rámů tvořených smrkovými trámy 10/20, ty jsou příčně ztuženy kleštinami. V podélném směru jsou moduly rámů provázány trámy 10/20, každý třetí modul bude osazen zavětrováním ocelovými táhly. Jako vnější opláštění jsou navržena surová, tlakově impregnovaná prkna proměnných šířek. Plášť neobsahuje tepelnou izolaci.
Vnitřní konstrukce pro sociální zařízení a technické zázemí budou provedeny z omítaných tenkých příčkovek. Sprchy a toalety budou přirozeně provětrávané větracími klapkami na fasádu objektu. Moduly s toaletami nemají plný strop, ale jsou uzavřeny deskou drátoskla, tím je zajištěno jejich prosvětlení.
Na podlaze předpokládáme použité (očištěné) cihly kladené na kant. Důraz je kladen především na léty prověřené konstrukce a technologie, jejichž hlavní devízou je uplatnění zdravého „selského“ rozumu a tím tedy také co nejefektivnějšího a ekologického řešení v kombinaci s charakterem stavění na českém venkově.

Navrhovaný objekt respektuje logiku umisťování staveb ve svahu (tím minimalizuje náklady potřebné na terénní úpravy, založení a konstrukční povahu objektu), je přímo vázán na jediný možný vstup do území, čímž klade minimální nároky na budování nových komunikací. Výška, tvar a odstupové vzdálenosti domu od staveb na sousedních pozemcích plně respektují platné normy a vyhlášky. Společně s plochou multifunkčního hřiště s betonovým povrchem vytvářejí “uzavřený”, ale prostupný areál, díky jehož orientaci není nutné počítat s esteticky rušivými drahými ochrannými sítěmi a protihlukovými bariérami. Úzký vzájemný vztah “Stodoly” a hrací plochy zároveň umožňuje využití hrací plochy jako příležitostného tanečního parketu.
Zásadním prvkem v území je pěšina procházející od východního cípu na západ. Dík svému volnému tvarování propojuje všechny objekty nacházející se v území. Na východě navazuje na záhumení cestu, prochází nově založeným extenzivním sadem a dotýká se travnaté plochy pro malou kopanou. Ve své střední části prochází podél nového objektu stodoly a je navázána na rampu, jež je hlavním vstupem do areálu. Od kaštanu pokračuje dále severozápadním směrem ke stávajícímu dětskému hřišti a dále k západnímu cípu řešeného území, kde se opět napojuje na záhumení cestu.
Stávající dětské hřiště je nově zpřístupněno pěšinou se šlapáky, začínající na jihozápadní hranici řešeného území stávajícím schodištěm a procházející obnoveným extenzivním sadem. Objekt Pivoje Oldřichovice je zachován ve své původní poloze.

















