generální projektant
IFK projektový ateliér, www.ifk.cz
architektonická část
Ing. arch. Tomáš Koňařík
architektonicko-stavební část
Ing. arch. Přemysl Jurák
Ing. arch. Tomáš Bílek
2015 / realizace
Rozsáhlý soubor Cisterciáckého opatství kláštera Osek se rozkládá na jih od centra města na ploše více než 17ha. Jeho budovami a dalšími objekty zastavěná plocha tvoří téměř polovinu ohrazené plochy kláštera a jsou komponovány na severní a severozápadní straně areálu. Městská zástavba se těsně přimyká ke klášterní ohradní zdi ze severní, severozápadní strany a ze strany západní až jihozápadní. Ze ¾ je areál lemován uličním systémem, který navazuje na historickou podélnou osu města, která je součástí dálkové cesty z Bíliny přes Krušné hory do Freibergu a při níž vzrostl světový architektonický unikát z roku 1197 cisterciáckého kláštera, později Cisterciáckého opatství.
Dominantní hmotou kláštera je kostel Nanebevzetí Panny Marie s osou orientovanou ve směru V-Z, ke kterému se přimyká kvadratura Konventu, v barokní době z východní strany Prelatura. Na tuto základní vnitřní architektonickou kompozici navazovaly v barokní době další, účelně umístěné budovy, mezi nimi i budovy hospodářské, budovy západního a východního křídla, jejichž osu tvoří vnitřní severojižní komunikace (cesta) procházející Prelaturou. Obě křídla hospodářských budov vymezuje prostorné hospodářské nádvoří, do něhož je vjezd od severu a tvoří začátek zmíněnou severojižní osy celého kláštera.

Pivovar se Sladovnou byly umístěny ve východním křídle hospodářských budov, kde měla dominantnější postavení Sladovna. Tato budova se do navrhovaného programu nezapojuje (dle SSS má funkci studijního využití), proto se o stavbě Obnova pivovaru hovoří pouze v rozsahu lomené části východního křídla hospodářských budov, od Sladovny (mimo ni) po severní vjezd (včetně).
Areál Cisterciáckého opatství kláštera Osek je od 16. 8. 1995 NKP zapsanou ve státním seznamu památek s rejstříkovým číslem 2722, Pivovar pak 2722/16. Areál kláštera má jako NKP své vnější a vnitřní ochranné pásmo.

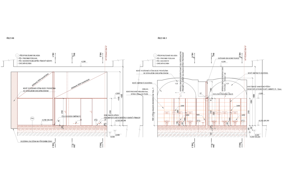
Řešené východní křídlo hospodářských budov, kam se připravuje stavba Obnova pivovaru, má půdorysný průmět ve tvaru podlouhlého lomeného objektu o 2 NP orientovaného delší stranou ve směru V-Z, kratší podsklepenou stranou přibližně SZ-JV. Dvoupodlažní hmota je zakončena nad korunní římsou sedlovou střechou se světlíky orientovanými na obě strany (volskými oky). Západní štítová stěna je zakončena střešní valbou. Na JV straně se hmota opírá o hmotu Sladovny t.č. bez střechy, protější vyváženou hmotou k východnímu křídlu je rovněž dvoupodlažní obdobně tvarovaná hmota křídla západního, která je při své východní štítové zdi rovněž zakončena valbou. Mezi takto téměř symetricky, velmi citlivě vyvážené hmoty byl koncipován nižší, hmotově subtilnější jednopodlažní trychtířovitě se zužující vjezd umožňující průjezd autobusům délky 15 m (bus 15). Vzniká zpět symetrická kompozice dvou rozlehlých hmot hospodářských budov, v jejichž dopravní ose je nižší hmota vjezdu. Jeho osa navazuje dále na sever navazuje na osu celého kláštera, na jehož vrcholu (vyvýšenině) je hmota Prelatury s průjezdem, nad kterým se tyčí věž Prelatury. Tímto řešením se historická kompozice zachovává.
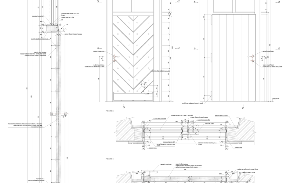
Křídlo Pivovaru, stejně jako další objekty hospodářských budov, jsou významnými barokními stavbami z přelomu 17. a 18. století s dochovaným nápisem na supraportě „ANNO 1701“ (nad původními dveřmi, dnes nad oknem v ose rizalitu).


Technologie pivovaru je koncipována zejména pro výrobu ležáku českého typu, čemuž odpovídá i její celkové uspořádání. Hotové pivo bude stáčeno do sudů a expedováno odběratelům nebo bude podáváno v degustační místnosti, venkovních terasách resp. restauraci. Výroba bude od restaurace oddělena skleněnou stěnou. Varna pivovaru bude ohrazena zábradlím.










