2021 / dokumentace pro provedení stavby
autor
Ing. arch. Přemysl Jurák
spolupráce
Ing. arch. Alžběta Majnušová
Ing. arch. Sylvie Tesková
DŮM
Dům správně stojí, ve stopě původního menšího domu, podél vrstevnice. Tvaroslovím se neodkazuje k původním stavbě, ale přináší soudobý odraz rodinného domu a zejména reaguje na kontext místa – prudký svah zahrady, stín od stávajících stromů, původní stodolu a sousední dům.
Nároží domu směrem ke stávající stodole symbolicky ustupuje – vzniká krytý vstup do domu, jihozápadní nároží domu ustupuje zahradě – vzniká krytá terasa. Do figury domu se propisuje sklon svahu, v podélné ose je dům rozčleněn na nižší úroveň a směrem ke svahu umístěnou zvýšenou dvoupatrovou část. Pultové střechy jsou skloněny ve směru svahu.
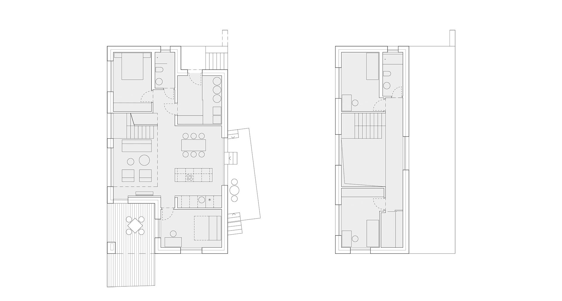
Centrální prostor společenské haly se schodištěm je srdcem domu a zahrady. Okna směrem do zahrady jsou komponována tak, aby zachycovala nejvhodnější výhledy z interiéru. Hlavní převýšené okno nabízí ze sedačky nebo jídelního stolu velkoformátový obraz travnatého svahu a zahrady s korunami stromů. Horním oknem se pozoruje obloha a také zachytává poslední sluneční svit při západu slunce nad vrcholem kopce. Světnice s kuchyní a jídelnou je směrem do vesnice otevřena jedním velkým oknem, na které navazuje malá terasa – zápraží na krátké posezení ve stínu koruny stromu.

VESNICE A KRAJINA
Obec Hřivínův Újezd leží jihozápadně od města Zlín ve vzdálenosti 15 km, přibližně v půli cesty mezi Luhačovicemi a Zlínem na severozápadním okraji Vizovických vrchů. Sousedí s obcemi Velký Ořechov, Doubravy, Březůvky, Ludkovice a Kaňovice. Katastrální území má rozlohu 7,66 km2, nadmořská výška je 272 m. V současnosti se v obci nachází 156 obydlených stavení a trvale zde žije 531 obyvatel.
Původní zástavba domy leží v úzkém malebném údolí Černého a Kaňovského potoka, jen místy se stavení objevují na úbočích svahů okolních kopců Kamenec, Kamenná a Za Dvorem.
Současné rušné těžiště obce leží na spojnici hlavních cest ze směru od Doubrav, Velkého Ořechova a ulicí napojující nejstarší severní část obce ležící podél Černého potoka. V této původní části obce se staršími domy v souvislé řadové zástavbě na levém břehu potoka je umístěn obecní úřad, mateřská a základní škola, hasičská zbrojnice a lokální dominanta kaple sv. Cyrila a Metoděje. Klasické rodinné domy se mísí i s několika relikty historických objektů lidového stavitelství – památkově chráněné komory dále sušírny či stodoly. V této části obce stálo na pravém břehu potoka až do poloviny dvacátého století jen několik roztroušených domů a hospodářských objektů. Následně je podél zregulovaného Černého potoka zahájena výstavba dvoupatrových samostatně stojících rodinných domů a původní stavení a parcely se dostávají vzhledem k hlavní ose obce do druhého plánu. A zde se nachází i řešený pozemek se stodolou, chlévy a původním rodinným domem. Na hlavní osu je napojen boční cestou dále směřující do kopce, přes louku a nakonec ztrácející se v lese pod vrcholem kopce Kamenec.
CHARAKTER PARCELY
Pozemek ve tvaru pravoúhlého lichoběžníku se v delší podélné ose poměrně prudce svažuje východním směrem a ve své nejnižší části navazuje na obecní cestu. Stávající objekty rodinné domu a stodoly byly propojeny chlévy a tvoří kompaktní půdorys ve tvaru písmene L. Vzhledem k vzájemným půdorysným souvislostem je mezi stavbami na parcele a cestou definována předzahrádka. Stávající dům s vysokým kamenným soklem je na pozemek vložen v příčném směru, podél vrstevnice, a dělí parcelu na zahradu se sadem (za domem) a veřejnou předzahrádku směrem k vesnici. Stodola orientovaná kolmo na dům stojí těsně podél severní hranice parcely a vzhledem ke svažitosti pozemku je částečně podsklepena. Vedle jižní fasády domu je stará studna.
Udržovaná a klidná, mírně svažitá, předzahrádka se za domem mění v prudce stoupající svah se sadem z rozeklaných ovocných stromů. Divoce působící atmosféra zahrady se dále prolíná do sousedního hustého lesa, který ještě než dosáhne vrcholu kopce chvíli stoupá pod podobným sklonem zahrada.
Jižním směrem pozemek sousedí s udržovanou loukou, při severní hranici parcely – přibližně na úrovni původního domu stojí sousední menší rodinný dům se sedlovou střechou. Z parcely se východním směrem otevírá výhled na protější svah zvedající se z údolí Černého potoka.
ZAHRADA A UMÍSTĚNÍ DOMU
V průběhu práce se prověřila řada variant uspořádání požadované dispozice na parcele a hledalo se úsporné, ale velkoryse působící řešení. Dům správně stojí, ve stopě původního menšího domu, podél vrstevnice. Minimalizuje se potřeba nových úprav stávajícího terénu. Dům se více přimyká ke stávající stodole, ale fyzicky nejsou propojeny. V místě odstraněných chlévů tím vzniká intimní zákoutí stíněné stromem a uzavřené k provozu na ulici. Dům dělí parcelu na zahradu se sadem (za domem) a veřejnou předzahrádku směrem k vesnici. Přístup do soukromé zahrady je omezen novým plaňkovým plotem vsazeným mezi dům a jižní i severní hranice parcely.
Součástí předzahrady zůstává jeden stávající ovocný strom, k východní terase je vysazen jerlín japonský, ke stodole doplněn ořešák královský. Rozhraní mezi obecním pozemkem s cestou a soukromou zahradou je naznačen nízkou kamennou zídkou a záhonem květin.
Klidná, mírně svažitá předzahrádka se za domem mění v prudce stoupající svah se sadem z rozeklaných ovocných stromů, divoce působícím atmosféra zahrady se prolíná do sousedního hustého lesa, který ještě než dosáhne vrcholu kopce chvíli stoupá pod podobným sklonem zahrada. Charakter zahrady za domem zůstává i s původními stromy zachován, aby byl umožněn pohodlný průchod podél fasády je svah u domu upraven dvoustupňovou opěrnou zídkou.

VSTUP
Předzahrada se záhonem květin je ke komunikaci vymezena nízkou kamennou zídkou. Z obecní cesty se do prostoru předzahrady nově vstupuje hned u štítu původní stodoly. Místo je akcentováno novým stromem vedle kamenného pilířem s poštovní schránkou, je tak vytvořena logická nejkratší spojnice vesnice a vstupu do domu.
Kamenný chodník s trávou ve spárách vede podél fasády stodoly a navazuje na několik betonových stupínků vyrovnávajících se svažitostí terénu. Prostor krytého zápraží je vzhledem k úrovni předzahrady přibližně o 1m výše a již navazuje na plochu zahrady za domem. Novostavba, původní stodola a sousední dům vytvářejí intimní zákoutí se stromem, prostor je charakterovým protipólem otevřené a veřejně přístupné předzahrádky.
INTERIÉR DOMU
Na velkorysý krytý předprostor vstupu navazuje zádveří s místem pro jednoduché flexibilní sezení a věšákovou stěnou s malým botníkem. K zádveří přiléhá šatna i s prostorem pro technologie domu. Do hlavního společenského prostoru domu se prochází přes prosklené dveře, které by měly skrz dům vizuálně i pocitově spojit zákoutí u stodoly a zahradu za domem. Srdcem domu je centrální pobytová hala se schodištěm vedoucí na ochoz v podkroví. V přízemí na společenské srdce domu s kuchyní, a jídelním stolem navazuje pracovna (pokoj pro hosta) a klidová část s ložnicí rodičů, koupelnou s toaletou. Převýšený prostor haly s ochozem v podkroví propojuje dva pokoje, ke kterým přináleží malá šatna a koupelna.
Pobytová hala je na jih, směrem do zahrady, doplněna krytou dřevěnou terasou. Z prostoru jídelny je přístupná východní terasa stíněná nově vysazeným stromem, charakterem se odkazuje prostor zápraží původního domu.
KONSTRUKCE, MATERIÁLY A TECHNOLOGIE
Jednotlivé možnosti řešení konstrukce a technologie domu budou dále posuzovány a zvažovány v navazujících stupních projektové dokumentace. V rámci studie je uvažováno s jednoduchou zděnou konstrukcí z vápenopískových cihel (VPC) šířky 200 mm. Vnější zdivo je kontaktně zatepleno izolací tl. 240 mm. Dům je založen na základových pasech z betonových tvarovek ztraceného bednění.
Pultové střechy budou řešený klasickým trámovým krovem s tepelnou izolací. Ve vyšší části domu podhled v interiéru kopíruje šikmou rovinu střechy, v přízemní části je podhled svěšen do roviny a prostor vzduchové kapsy bude využit pro rozvod technologií. V centrální hale bude z hlediska zlepšení akustické pohody nainstalován akustický podhled.
Na podlahách v domě je předpokládáno ve všech prostorech marmolemu ve světlém odstínu. V koupelnách je předpokládán keramický obklad a dlažba.
Materiály a povrchy v exteriéru dům navazuje na odstraněnou stavbu a sousedící stodolu. Světlá fasáda je doplněna šedými rámy oken a šedým oplechováním. Hladká režná pálená taška na střeše dům materiálově spojuje se stodolou. Střech jsou odvodněny skrytými zaatikovými žlaby a svody.
Hliníková okna jsou navržena v kombinaci fixních zasklení a otvíravých ventilačních křídel. Potřeba stínění oken exteriérovými žaluziemi bude v další fázi projektu posouzena výpočtem tepelné stability vnitřních prostorů.
Připojená východní terasa a prvky terénních uprav v zahradě jsou navrženy z původního kamene. Směrem na jih je orientována krytá dřevěná terasa.
Jako zdroj tepla pro vytápění a ohřev teplé vody je předpokládáno tepelné čerpadlo vzduch-voda, venkovní jednotka bude umístěna při severní fasádě domu. Jednotlivé pokoje budou vytápěny rozvody topné vody v podlaze. Pro snížení energetické náročnosti domu je počítáno s instalací rekuperační jednotky.
Pro připojení k technické infrastruktuře využije dům stávající přípojku vodovodu a stávající připojení k rozvodům NN. Vzhledem k absenci čistírny odpadních vod v systému jednotné obecní kanalizace, bude nezbytné realizovat vlastní domovní čistírnu odpadních vod. V další fázi projektu bude posouzena ekonomická návratnost možnosti zpětně využít vyčištěnou vodu pro potřeby domácnosti.
Dešťové vody ze střech novostavby i stávající stodoly budou zachytávány v podzemní akumulační nádrži a následně využity pro potřeby zahrady. Přebytečné dešťové vody budou vsakovány na řešeném pozemku.























