autoři
Ing. arch. Roman Chvilíček
Ing. arch. Přemysl Jurák
2018 / zahájení realizace
spolupráce
Ing. arch. Kristýna Kredbová
Bc. David Poloch
projekt krovu
Ing. Lukáš Krbec
krbec.lukas@a2timber.cz
projekt betonových konstrukcí
Ing. Patrik Štancl, Ph.D.
www.statika3.cz
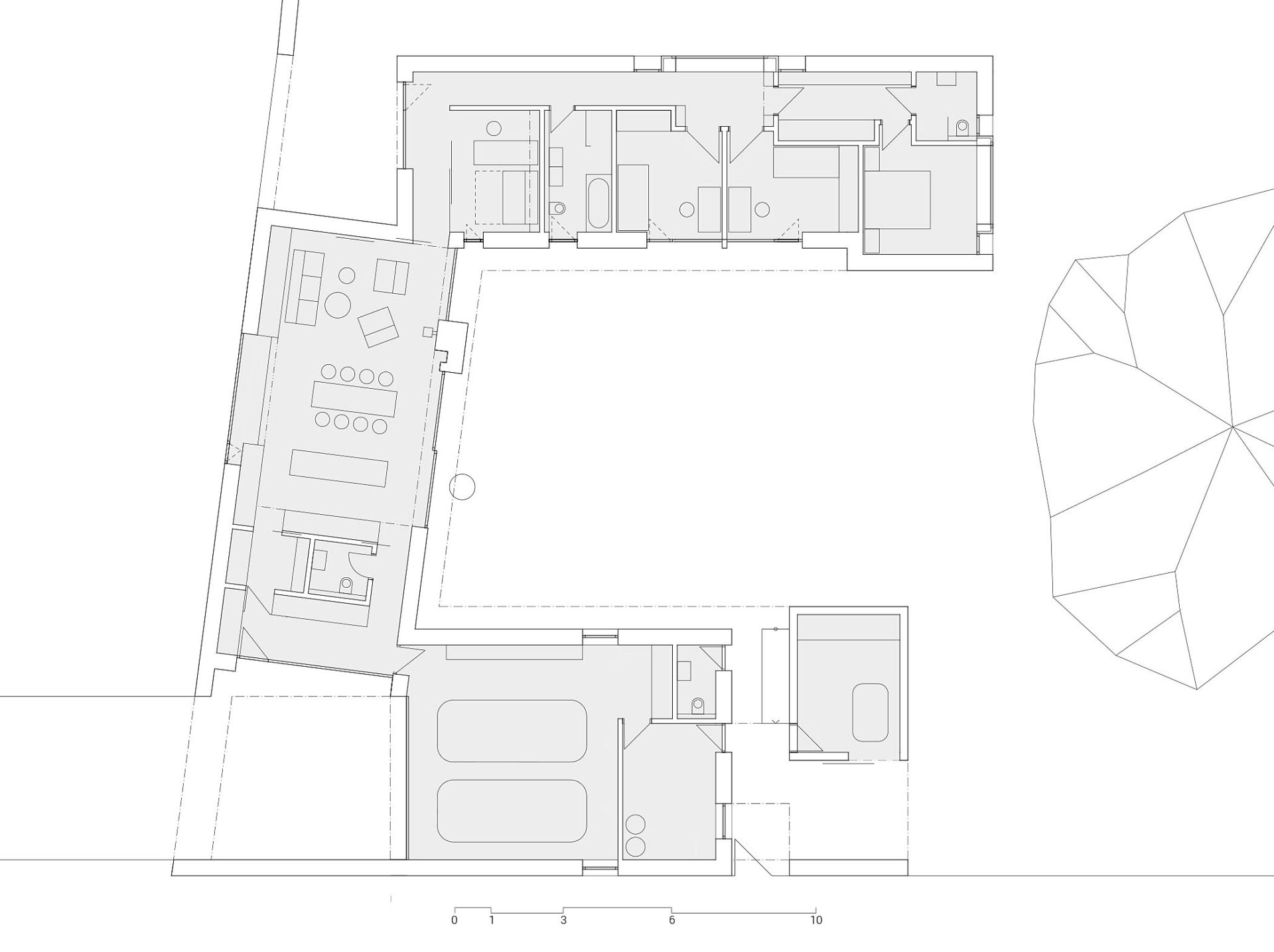
Dům ve tvaru U se třemi křídly se sedlovými střechami. Hmoty natupo přiraženy k sobě, vždy kratší a delší stranou s částečným překryvem, objímají soukromý dvorek se studnou a stromem. V jednom vnějším volném rohu vzniká vstupní prostor mezi interiérem a veřejnou parcelou, v druhém rohu je sevřený prostor zahrady propojen s pracovnou. Sedlové střechy a výška hřebene je navržena tak, aby z kteréhokoli místa ve vnitřním dvorku odstínili siluetu sousední vyšší budovy. Vnější stěny domu jsou okolo dvorku ustoupeny dovnitř objemu – je vytvořen přesah střechy, pod kterým vzniká kryté venkovní místo – prostor mezi interiérem a exteriérem domu. Hrana přesahu střechy jasně dělí dvorek ve vertikální ose na spodní intimní část, která spolupůsobí s interiérem domu, je obývána, a na horní nepřístupnou utilitární část střech.

Řešené parcely se nachází v katastru obce Slavkov v okrese Uherské Hradiště. Trvale zde žije 662 obyvatel. Obec se rozkládá asi šestnáct kilometrů jihovýchodně od Uherského Hradiště a osm kilometrů jižně od města Uherský Brod. Národopisně patří do historické oblasti moravského Slovácka a je vzdálená přibližně dvanáct kilometrů od slovenských hranic.
Charakter obce je utvářen historickou obchodní cestou z Ostrohu na Strání až do Nového Mesta nad Váhom a dvěma vodními toky – říčkou Okluky a Zlejšovským potokem. Topografie navazuje na členitou krajinu jihovýchodní Moravy, jež je tvořena směsí luk, polí, hájů a hlubokých lesů Bílých Karpat. Severo-jižní osa hlavní cesty je ve své většině lemována klasickou vesnickou zástavbou řadových rodinných domů s kolmým hospodářským křídlem. Za touto pevnou hranou formující základní prostorové vnímání celé vesnice se odvíjejí úzké parcely zahrad. Z východní strany je obec lemována meandrující říčkou Okluky na západ se za záhumení cestou otvírá do lánů. Středem vesnice příčně protéká Zlejšovský potok. Poloha a jeho přímá linie je výsledkem přísné regulace, která proběhla v druhé polovině dvacátého století.

vnitřní dvůr, charakter místa
Pozemky s třemi trvale neobývanými domy leží ve středu obce. Od hlavní silnice jsou odděleny výrazným travnatým předpolím, které je pozůstatkem původní klikaté cesty Zlejšovského potoka. Stávající situace, kdy historická řadová zástavba byla na sousedních parcelách přerušena, vznikla regulací koryta Zlejšovského potoka a solitérní stavbou objektu „Jednoty“ a společenského sálu, sousedící s řešeným pozemkem ze severu. Tyto předchozí zásahy jsou nyní daností a není možné o nich uvažovat jako o jizvách v původní struktuře vesnice, které by bylo možné v budoucnu zacelit. Mezi korytem potoka a budovou „Jednoty“ vzniká ostrov tří původních domů silně ovlivněný objemem a výškou sousedního objektu občanské vybavenosti.
Jako hodnoty místa vnímáme intimní charakter vnitřního dvorku prostředního domu s vzrostlým ořešákem a starou studnou. Hospodářská křídla domů a jejich proporce vytvářejí pocit vlastního mikrosvěta, ve kterém není cítit vliv sousední poměrně vysoké a objemné budovy.
Vrstvením jednotlivých zásahů do původního jasného prostorového schématu řadové zástavby vznikly dva solitéry – dům obchodního střediska a jako relikt působící domy na třech úzkých parcelách. V kontextu tohoto nahlížení na současnou situaci v místě, definujeme nový solitérní dům, dům rozkročený přes šířku dvou původních parcel. Třetí parcela zůstává volná, dům je tím jasně odsazen od sousedního obchodního střediska, vzniká zde otevřená hospodářská zahrada – sad. Takto koncipovaným vstupem do poškozené původní struktury je zřetelněji vykreslena rytmika střídání domů a volných prostorů v linii původní uliční čáry.
Ze stodoly pro povoz se stala garáž pro automobil s návazností na další obslužné místnosti domu. Světnice se vlivem v současnosti zažitých prostorových nároků stala jedním z domů, stále však orientovaná jak do ulice, tak i do dvora. Hospodářské křídla s dispozicí chlévů
zcela pozbyly významu a jsou odstraněny. V místech tří domovních průjezdů ponecháváme nový průjezd, rozměrné okno do společenské místnosti a bránu v plotě. Tři nové domy jsou vloženy do fragmentů zdí z původních materiálů. Znovu použití původních materiálů, navázání na přirozenost a hodnoty místa přináší nalezení nové síly.
Vstup do domu je krytý zvětšenou šířkou betonového překladu nad průjezdem do vstupního dvorku. Vstupní dveře jsou zapuštěny do hmoty domu, tak aby pod vzniklým přesahem mohlo pohodlně vyčkat několik osob. Pro krátký neformální rozhovor před dveřmi je zde umístěna lavice opracovaná z části kmene stromu, slouží také jako ochrana skleněné stěny před provozem mezi garáží a příjezdovou cestou. Zádveří domu je zařízeno vestavěnými šatními skříněmi, lavicí s botníkem. Čelně při pohledu od vstupních dveří je přes skryté dveře přístupná spíž. Zádveří je přes krátkou spojovací chodbičku, která dále obsluhuje pohotovostní toaletu, propojeno se světnicí, hlavní společenskou místností domu. Užší, zešeřelý a bezbarvý obslužný prostor chodby se v místnosti s jídelním stolem, pracovním ostrůvkem kuchyně a s částí pro sezení u krbu transformuje do vzdušného prosvětleného prostoru. Jedním oknem směrem na západ je světnice provázána s děním ve vesnici, prosklenou stěnou na jihovýchod je do interiéru zapojen dvůr se studnou a starým ořešákem. Prostor dále plyne do části ložnicového křídla s pracovnou, hlavní koupelnou,
dvěma pokoji pro děti a částí s šatnou, koupelnou a ložnicí rodičů. Prochází se podél francouzského okna směřujícího do malého dvorku a stěny pracovny z matného skla, přes které se propisují police knihovny. Za rohem se pokračuje do spojovací chodby, která je přisvětlena skleněným nadsvětlíkem dveří vedoucích do hlavní koupelny. Závěr komunikačního prostoru se rozšiřuje a vzniká tak vzdušnější místo před dveřmi do pokojů dětí a vstupem do části pro rodiče. Stěny jsou doplněny policemi na knihy, podélné okno se sníženým a rozšířeným vnitřním parapetem se v interiéru stává nábytkovým prvkem. Propojení pokojů dětí a předprostoru na chodbě je skrze nadstandardně široké dveře. Okna pokojů jsou orientovány na jih, stíněny proti slunci a chráněny proti dešti přesahem střechy. Ložnice rodičů je přístupná přes samostatnou šatnu s koupelnou. Okno do ložnice je orientováno na východ do zahrady se sadem.
Hospodářské křídlo s garáží, technickou místností/prádelnou a toaletou je napojeno na obytnou část domu přes zádveří. Prostor pro auta je rozšířen o kout pro skladování kol a sportovního vybavení. Přes technickou místnost sloužící také jako prádelna se vstupuje do krytého venkovního prostoru před skladem pro zařízení pro údržbu zahrady. Tato koncová část hospodářského křídla je pojata jako předěl mezi vnitřním prostředím domu a venkovním světem zahrady, navržené schodiště pohodlně zpřístupňuje skladovací prostory nad garáží a skladem.
stávající stav:




























