rekonstrukce vily Pozlovice
autoři
Ing. arch. Roman Chvilíček
Ing. arch. Přemysl Jurák
2018 / zahájení realizace
spolupráce
Bc. David Poloch
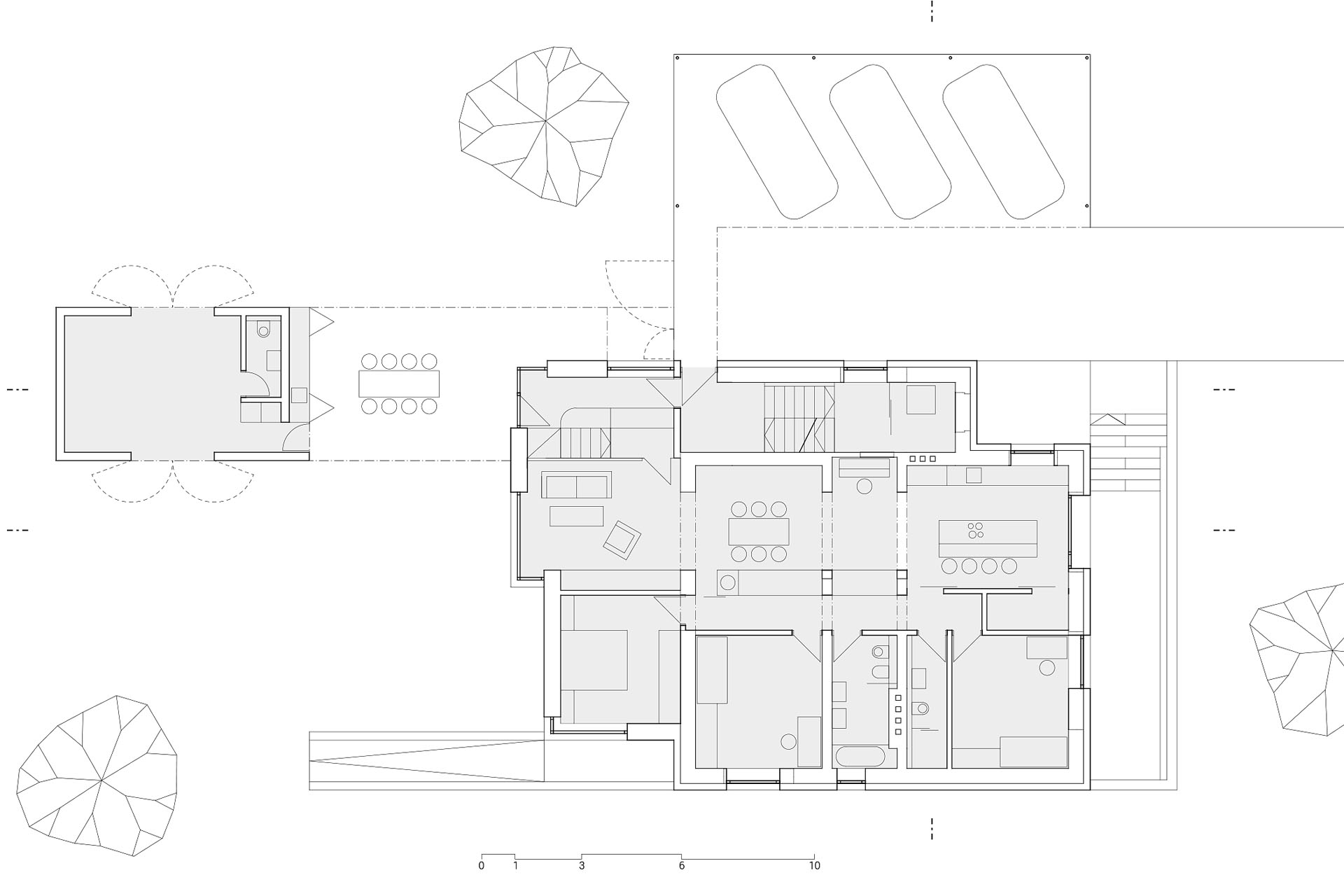
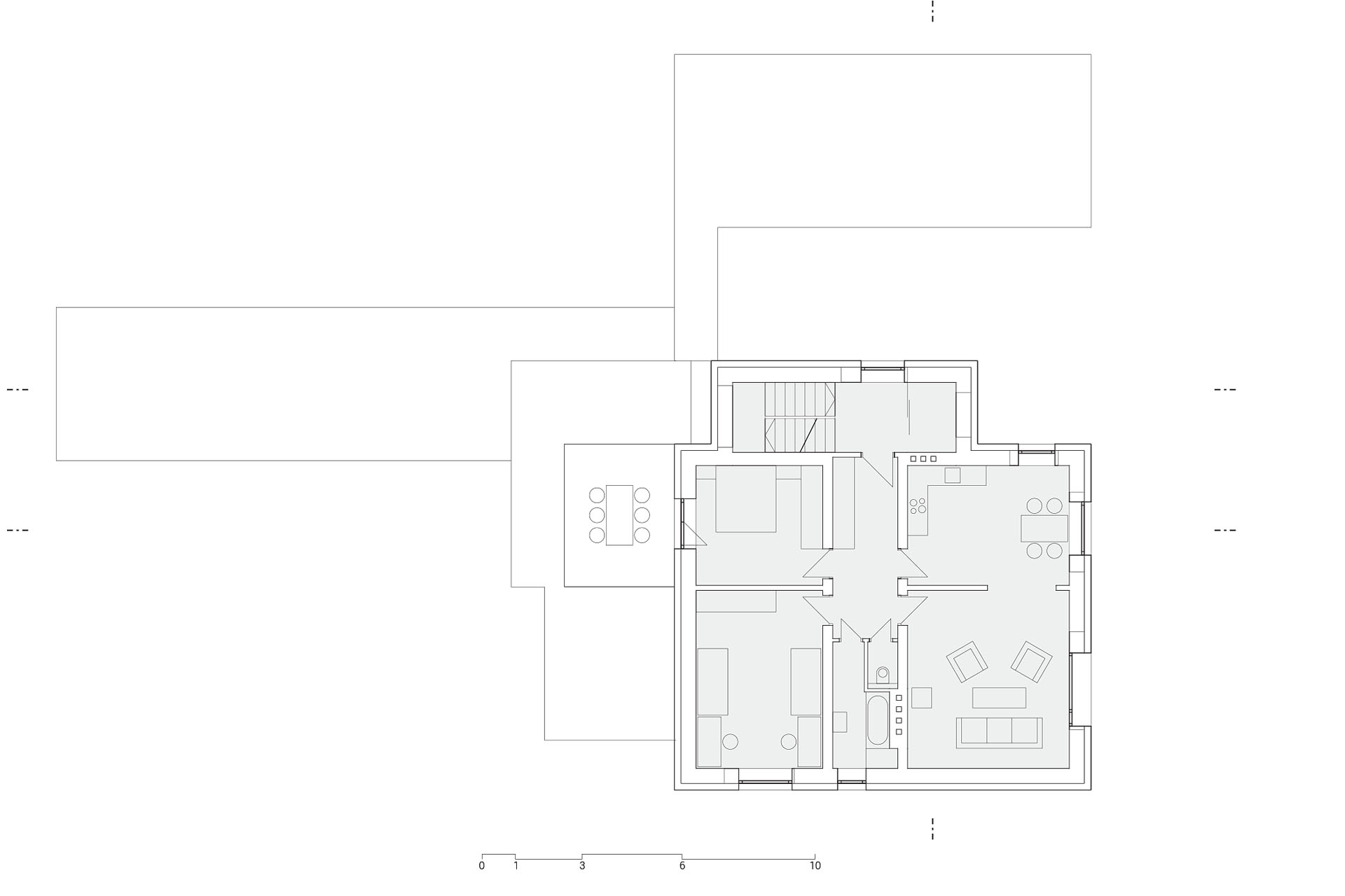
Návrh řeší stavební úpravy a přístavbu rodinného domu z přelomu 80. a 90. let dvacátého století.
Stavebně technicky nevyhovujíc balkony a vnější schodiště jsou odstraněny. Nová okna jsou umísťována pod stávající překlady a nevyžadují zásah do obvodových konstrukcí. Balkony jsou nahrazeny lodžiemi na hloubku ostění francouzských oken.
Záměrem je vybudování maximálně úsporného domu s co nejmenšími provozními nároky. Pro dosažení na dotaci z programu Nová zelená úsporám bude objekt kompletně zateplen.




stávající stav:

Související aktuality:
5. 6. 2021
V Pozlovicích u Luhačovic pomalu dokončujeme stavební úpravy domu se třemi byty a malou kanceláří.


















